Rundgang durch eine Dialysepraxis.
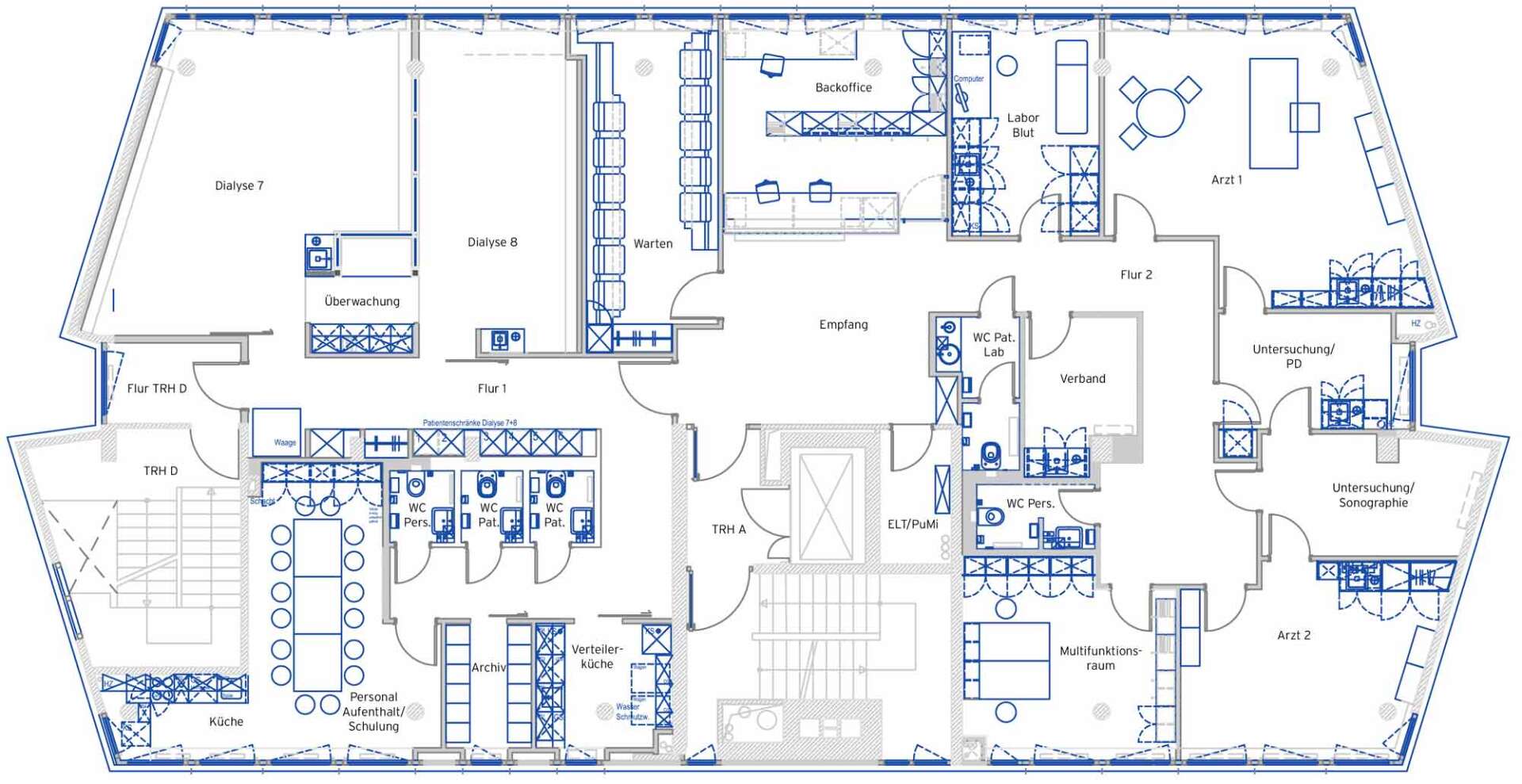
Der Grundriss dieser Dialysepraxis erstreckt sich auf mehr als 500 m2 über zwei Etagen. Bestimmendes Gestaltungselement ist die Grundfarbe Weiß, die immer wieder durch ergänzende Farbtupfer unterstrichen wird. Einbauschränke und viele weitere clevere Ideen garantieren reibungslose Abläufe. Ein ip20 Praxisdesign, das von Inhabern, Mitarbeitern und Patienten gleichermaßen geschätzt wird.
Empfangsbereich
Im unteren Geschoss der Praxis werden die Patienten an einem hochglänzenden weißen Empfangstresen begrüßt. Der Tresen über-
nimmt das Corporate Design der gesamten
Praxis. Alle Oberflächen sind mit Acryl belegt.

Wartezimmer
Die Patienten und deren Angehörige nehmen während der Wartezeit auf bequemen und eigens für diese Praxis konstruierten Sitzbänken Platz. Die Sitze sind ergonomisch und mit haltbarem Kunstleder gepolstert.

Garderobe
Jeder Wartebereich ist mit einer großzügigen, ebenfalls in die Wand gesetzten und beleuchten Garderobe ausgestattet. Die Acryl-Rückwand ist farblich auf das Praxiskonzept abgestimmt. Die Garderoben sind aus den Patientenbereichen leicht und schnell zu erreichen.

Sprechzimmer
Die Sprechzimmer sind mit auf den Raum zugeschnittenen Schreibtischen und einer passenden Schrankwand mit Handwaschplatz ausgestattet.
Auch das zweite Sprechzimmer präsentiert sich in der einheitlichen Gestaltung aller Räume
in weiß und orange. Robuste, farblich passende Besucherstühle ergänzen die Ausstattung sinnvoll.


Schränke im Flur
An verschiedenen Stellen in der Praxis schaffen in die Wand gesetzte Einbauschränke klare Linien und helfen bei der Organisation der Praxis. Lauf- und Fluchtwege bleiben dabei frei. Eine durchdachte und praktische Lösung.

Umkleideraum
Im Bereich der Umkleideräume bieten die individuell gefertigten Garderobenschränke ein Optimum an Platz und Sicherheit für die Kleidung der Mitarbeiter und Patienten.

Küche
Im Aufenthaltsbereich der Mitarbeiter wurde unter anderem eine Küche realisiert, die sich in die besondere Form des Gebäudes integriert und durch die Verwendung gleicher Materialien perfekt mit dem Praxisdesign harmoniert.

Konferenzraum
Ein eigener Schulungs- und Konferenzbereich bietet Raum für Mitarbeiterfortbildungen und Teamgespräche, genauso wie für Patientenschulungen oder externe Schulungsmaßnahmen.


