Anmeldungen in der Detailplanung.
Als Innenarchitekten und Fachberater haben wir einen reichen Schatz an Beispielen von Praxen und anderen Objekten im Gesundheitswesen. Dabei stellt jede Praxis unsere Planer im Detail vor neue Anforderungen: Einige ihrer kreativsten Lösungen zeigen wir Ihnen hier – detailliert.
Auf beengtem Raum.
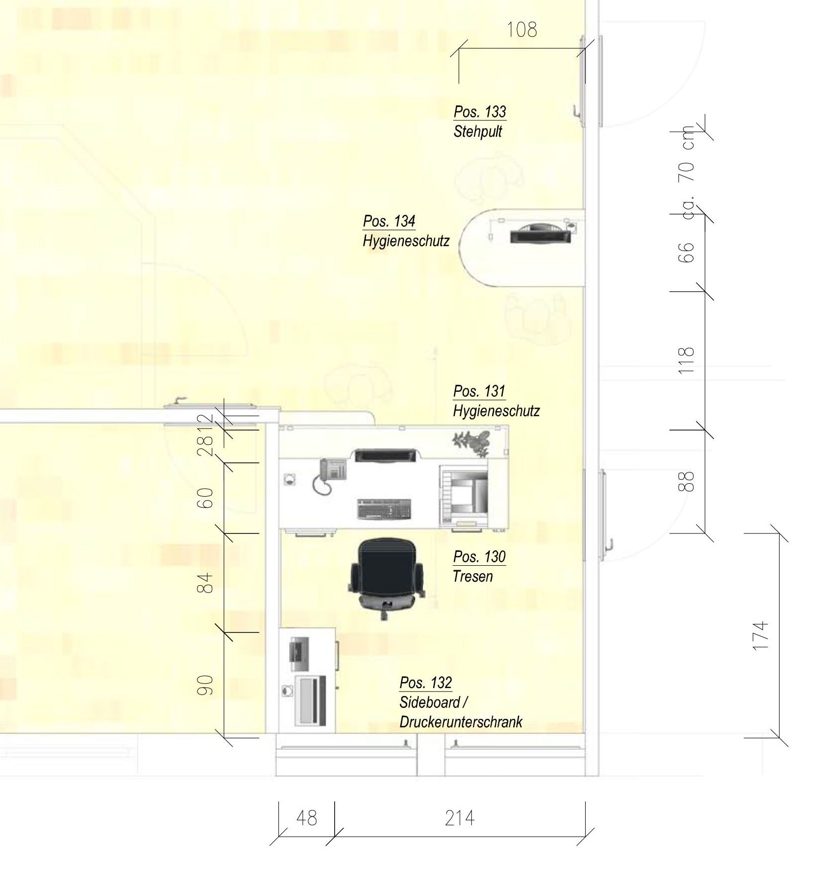
Der Empfang einer Praxis für Augenheilkunde mit einem Annahmeplatz und einem „Notplatz“ für Gespräche, für Zeiten hohen Patientenaufkommens oder die Abrechnung am Quartalsende.
Theoretisch ist der zur Verfügung stehende Raum (der zudem durch den Eingang zum Sozialraum beengt wird) zur klein. In der Praxis muß er knapp ausreichend sein.
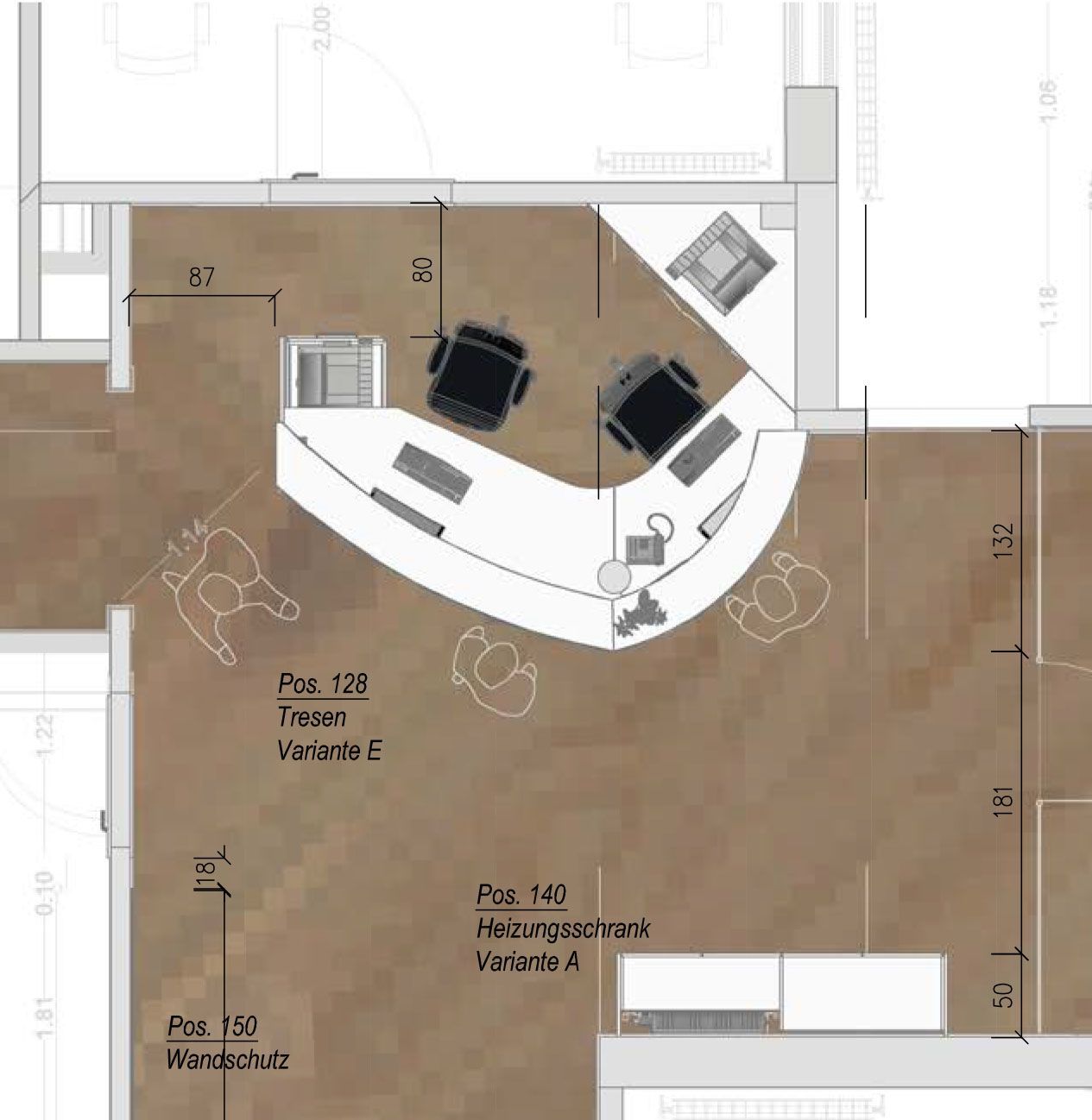
Mit horizontaler Lichtfuge.
Eine horizontale Fuge in der Tresenfront betont die waagerechten Linien dieses Empfangstresens einer Augenarztpraxis – innerhalb der Fuge befindet sich eine dimmbare LED-Beleuchtung.
Das Foto der Treseninnenseite zeigt ein interessantes Detail: Bohrungen für zwölf Schalter und Bedienelemente in einer herausnehmbaren Frontblende.
Rollbares Druckersideboard.
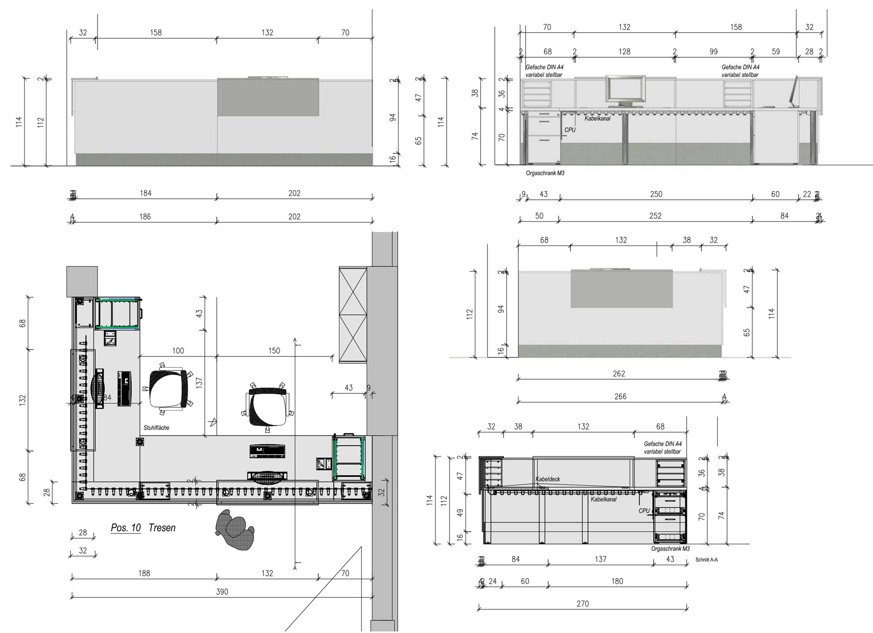
Annahmetresen einer Praxis für Diabetolgie, mit drei vollwertigen Arbeitsplätzen.
Das unspektakuläre Äußere des Druckersideboards birgt Besonderheiten: das Möbel besteht aus zwei Elementen, die einzelnen beiseite gerollt werden können, um bei Bedarf vollflächig an den dahinter befindlichen Heizkörper heranzukommen.





















































































