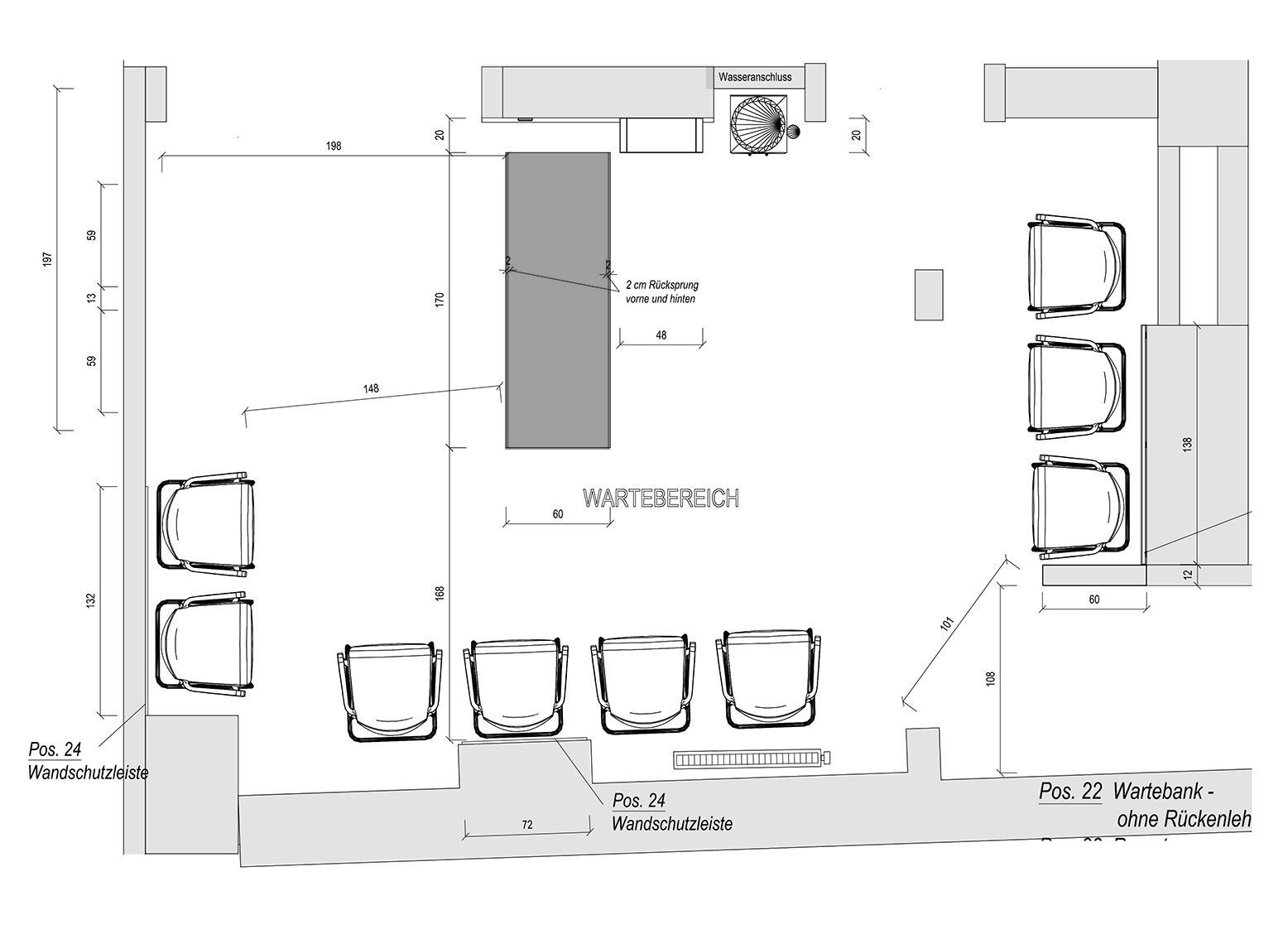
Wartezimmer in der Detailplanung.
Als Innenarchitekten und Fachberater haben wir einen reichen Schatz an Beispielen von Praxen und anderen Objekten im Gesundheitswesen. Dabei stellt jede Praxis unsere Planer im Detail vor neue Anforderungen: Einige ihrer kreativsten Lösungen zeigen wir Ihnen hier – detailliert.





















































